琼海市潭门中心渔港升级改造项目水土保持方案报告表
时间:2025-12-16 13:21:26
琼海市潭门中心渔港升级改造项目水土保持方案报告表
Ⅱ水土保持方案报告表简要说明
1 项目概况
1.1 项目概况
一、项目基本情况
1)项目建设必要性
潭门中心渔港地处海南省琼海市东部沿海,距离嘉积城区20公里。琼海市潭门中心渔港升级改造项目不仅扩大了渔港的水域面积,船舶的锚泊容量得到了较大的提高,为本地及在附近生产作业的外地渔船提供安全的避风港池,减少渔民生命财产损失,而且可充分发挥本地区的渔业资源优势和渔业的综合效益,提高渔业的附加值,增加国民经济收入。
潭门中心渔港升级改造工程是响应海南省政府建设海洋经济强省的战略部 署和琼海市政府发展壮大海洋渔业, 加快渔业转型的主要措施。潭门中心渔港功 能的完善将会加快发展休闲渔业的建设步伐, 为全面实现渔业可持续发展打下坚实基础。

因此,综上所述本项目的建设是必要的、可行的。
2)项目名称
琼海市潭门中心渔港升级改造项目
3)项目地理位置
海南省琼海市潭门镇排港村北侧岸线及出海口。(项目区中心经纬度坐标为E 110.619982 ,N 19.235799)。
4)建设性质
新建项目
5)项目建设单位:琼海市农业农村局
6)建设内容
新建综合渔业管理码头泊位长度310m,北侧布置13个小型渔船泊位(可兼 靠交通船、渔政船和休闲渔船),泊位总长145m;南侧布置6个休闲渔业泊位, 泊位总长 165m。加固改造北侧防波堤225m,修补南侧防波堤620m;修复海堤20m;改造沙滩木栈道320m;潭门中心渔港(一、二期)水域及航道疏浚。新建导助航以及生产配套设施、供水、供电、照明通信、消防、景观等。
7)项目情况说明: 本项目为渔港升级改造项目, 项目由综合渔业管理码头、加固改造修补防波堤, 改造沙滩木栈道以及港池航道疏浚组成,由于项目建设及 后期运行过程实际征占土地的为综合渔业管理码头,加固改造修补防波堤和改造 沙滩木栈道部分,故本方案占地面积、土石方量、水土保持评价、水土流失分析 与预测、水土保持措施布设、水土保持投资估算及效益分析等主要针对综合渔业管理码头,加固改造修补防波堤和改造沙滩木栈道部分进行统计。
8)总投资、土建投资及资金来源
本项目总投资10505.22万元, 工程建设费2702.51万元,资金来源为政府投资。
9)建设工期
本项目计划于2023年10月开工,计划至2025年10 月完工,总工期25个月。
10)拆迁(移民)安置与专项设施改(迁)建本项目场地内有部分泡沫浮箱和鱼排需要迁移, 本项目不另设相关水土保持设计,本项目不涉及拆迁(移民)安置与专项设施改(迁)建。
11)本项目经济指标
表 1-1 主要技术经济指标

图 1-1 项目区遥感影像图

二、项目现状
项目位于海南省琼海市潭门镇排港村北侧岸线及出海口。本项目主要建设综 合渔业管理码头泊位长度 310m,北侧布置 13 个小型渔船泊位,泊位总长 145m; 南侧布置 6 个休闲渔业泊位, 泊位总长 165m。加固改造北侧防波堤 225m,修补 南侧防波堤 620m;修复海堤 20m;改造沙滩木栈道 320m;潭门中心渔港( 一、 二期)水域及航道疏浚。新建导助航以及生产配套设施、供水、供电、照明通信、消防、景观等。根据现场调查,截止2023 年 8 月,项目尚未开工。
根据现场调查, 结合遥感数据和相关影像, 本项目场地地面标高-6.75~3.13m,
高差 9.88m,航道南岸均有道路及 1-2 层民宅,北岸为防洪堤。
表土保护情况: 根据现场资料, 咨询建设单位并结合现场踏勘可知, 本项目 场地主要为草地、园地和水域及水利设施用地, 项目区地处潭门镇排港村北侧岸
线及出海口,土壤类型沙化严重,项目区内表土资源匮乏,无表土可剥。
图1-3 项目区航拍现状图

三、项目前期工作进展情况
2020 年6月,琼海潭门中心渔港升级改造项目岩土工程勘察报告(可行性研究阶段);
2022 年7月,建设单位取得了琼海市潭门中心渔港升级改造项目工程可行性研究报告;
2023 年5月,建设单位取得了琼海市发展和改革委员会关于琼海市潭门中心渔港升级改造项目初步设计及概算的批复。
根据《中华人民共和国水土保持法》及水利部《开发建设项目水土保持方案编报审批管理规定》、《海南省实施〈中华人民共和国水土保持法)办法》等法律、规章的要求,受建设单位琼海市农业农村局的委托, 内蒙古大地环保工程设 计有限公司承担了《琼海市潭门中心渔港升级改造项目水土保持方案报告表》的 编制工作。接到委托后,我公司迅速成立了由水保部牵头的项目组,于2023年8月组织项目组技术人员对本工程现场进行了勘察,结合项目区有关自然环境、 社会经济和水土保持等方面的资料,在分析研究的基础上,于2023年8月编制
完成了《琼海市潭门中心渔港升级改造项目水土保持方案报告表》。
1.2 项目组成及布置
一、项目组成
项目组成按建设内容划分,主要新建综合渔业管理码头,加固改造北侧防波堤,修补南侧防波堤,修复海堤, 改造沙滩木栈道,潭门中心渔港( 一、二期) 水域及航道疏浚,新建导助航以及生产配套设施、供水、供电、照明通信、消防、景观等。
二、总体布置
琼海市潭门中心渔港升级改造项目新建综合渔业管理码头泊位长度310m,北侧布置13个小型渔船泊位(可兼靠交通船、渔政船和休闲渔船),泊位总长145m;南侧布置6个休闲渔业泊位,泊位总长 165m。加固改造北侧防波堤225m,修补南侧防波堤620m;修复海堤20m;改造沙滩木栈道 320m;潭门中心渔港 ( 一、二期)水域及航道疏浚。新建导助航以及生产配套设施、供水、供电、照明通信、消防、景观等。
图 1-4 项目区鸟瞰图
三、 竖向设计
1.码头布置
码头北侧布置 13个小型渔船泊位(可兼靠交通船和渔政船),泊位总长 145m, 同时视休闲渔业远期发展情况, 可兼做休闲渔船泊位。南侧布置6个休闲渔业泊位,泊位总长165m。码头总长 310m,泊位总数 19 个。码头前沿水域宽度72m。交通船泊位距离对岸渡口泊位距离较近,渔政管理泊位对休闲渔业泊位进出港影
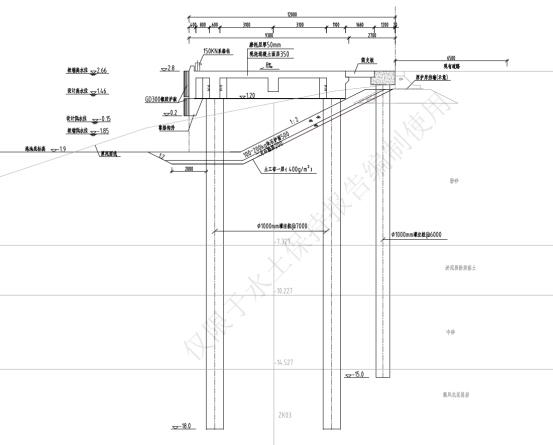
响小。码头长310m,分10个结构段,结构段长度为31m。码头宽 9.3m,采用现浇正交结构,横梁、纵梁均采用现浇混凝土结构;面板采用现浇混凝土结构。排架间距7m,每排架布置2根桩基。桩基考虑全部采用中 1000mm 灌注桩,桩底标高-18m。排架前沿设置 150KN 系船柱,防撞设施采用 GD300H型橡胶护舷。在现有道路挡墙前设中1000mm 灌注桩,间距6m,底标高- 15.0m,灌注桩通过现浇连续梁连接,码头用简支板跟连续梁相连,简支板厚0.35m,宽1.68m。护坡采用500mm护面块石和200mm 二片石垫层,坡度 1:2;港池底标高-1.9m。
表 1-2 码头前沿底标高表

图 1-5 新建码头设计断面图
2.防波堤
(1)北防波堤
本项目加固改造北侧防波堤225m。根据主体设计资料,北防波堤总长约 385m,本次仅对北防波堤东段进行加固改造,北防波堤现状高程 0.24m~0.99m,
堤身位置现状高程为-0.40~-0.86,主体设计堤顶高程为2.50m。
表 1-3 北防波堤尺度表 单位:m
位置 现状标高 改造后标高 现状宽度 改造后宽度 备注
北防波堤西段 160m 3.4 / 2.6 / 不改造
北防波堤西段 225m 1.00 2.5 2 3.0 堤头段宽 5.0m
防波堤按允许越浪的标准进行设计, 选择块石护面的斜坡堤。北侧防波堤堤 顶高程为2.5m,堤顶采用厚 400mm 浆砌块石、厚 200mm 级配碎石垫层及现浇 C40 砼压顶, 下设厚 100mmC20素砼垫层、厚200mm 级配碎石垫层。 北侧防波 堤堤头段为5.0m、堤身段顶宽为 3.0m。北侧堤头段内外坡均为 1:2.5,采用>450kg 块石护面,面层厚度为 1.2m;南、北侧堤身段内外坡均为1:2.5,采用≥250kg
块石护面,面层厚度为 1.2m。内外侧的坡底都采用≥100kg 块石护底。
图 1-6 北侧防波堤设计断面图

本项目南侧防波堤仅对现有断面进行修补。对于防波堤堤身干砌条石缺失部 位进行修补,同时对于南防波提全长620m的护底抛填 100~200kg块石进行修 补,每侧护底宽3m,厚 1m。对于西段200m 混凝土路面采用 M15砂浆进行抹
面处理。
3.进港航道布置
潭门中心渔港现有进港航道总长 2650米,宽60米,港池、航道设计水深分别为-3.72、-3.92 米。
本项目对于潭门中心渔港码头(一期、二期)的码头前沿水域、避风锚地、航道进行维护疏浚。 疏浚物为淤泥质砂,疏浚物拟抛至清澜海洋倾倒区,抛泥运 距约40.64km。采用1艘4方抓斗船施工,清澜倾倒区位于清澜港以南约8km 处,以 110°52′00″ 、E,19°29′00″N 为中心,以 0.5海里为半径范围内,面积约270万平方米,海水深约25m,可容纳本项目疏浚物倾倒需求。
图 1-7 疏浚物倾倒区与本项目的位置关系
4.海堤修复
在被台风波浪掏空损坏的海堤处,补抛40~80kg堤心石,海侧抛填 600~ 800kg块石护面厚900mm。陆侧设置二片石垫层、碎石倒滤层和无纺土工布一 层。堤顶设置 200mm 碎石垫层+100mm 厚 C10 素砼垫层, 其上现浇 C30 混凝土
挡浪墙,挡浪墙顶标高 4.5m。海堤修复长约 20m。
图 1-8海堤修复设计断面图
5.沙滩栈道改造
南防波堤沙滩木栈道已经老化破旧,本工程拟对南防波堤堤根处的栈道进行 改造,共长约320m,宽1.5m。结构采用200mm碎石垫层+200mm 混凝土基础+热镀锌钢结构+塑木板。
6.景观平面布置
景观工程在码头面设置景观花池,花池尺寸2.06mx0.66mx0.68m(长×宽×高),共64 个,花池种植长春花 87m2。码头端部设置景观栏杆,总长24m。在码 头与道路边线设置景观围墙,并布置出入口4处,景观围墙总长270m。沙滩栈 道沿线布置观景座椅,共12个。在南防波堤堤根沙滩处,为展示海洋渔业景观文化,设置自然石刻字、观景亭、海渔文化景墙、海鱼雕塑各一项。
7.导助航
(1)浮标
根据《中国海区水上助航标志》(GB4696-2016)与《海区浮动助航标志配 布导则》GB/T26781-2011,并结合水域布置方案,本工程需在码头端点设置2座 灯浮标以标示港池水域边界。浮标直径 1.8m,总高 4.27m,灯架高度 2.34m。灯器为免维护型一体化航标灯。
(2)灯塔
为保障船舶安全进出港,在北防波堤堤头新建1座灯塔,同时考虑景观提升,并与北防波堤新建灯塔的景观协调一致,需拆除南防波堤堤头旧灯塔并新建1座灯塔,共新建2座灯塔。本工程共布置4座导助航设施。
四、给排水工程
给水系统: 本工程的水源接市政管网,接管点设在码头与港区大道附近,以阀门作为分界点,要求接管点的压力不小于0.25Mpa,输水管的管径不小于 DN150。根据本工程的特点, 生活给水系统与消防给水系统共用一套给水管网系 统,消防水管设在码头后侧,埋地敷设;生活水管(包括船舶用水和环保用水), 采用架空敷设, 生活用水和消防用水连成一套给水管网系统,形成环状布置。埋的采用钢丝网骨架聚乙烯复合给水管,架空的采用内外涂塑钢管。
排水系统:本工程排水采用分流制。其中码头的地面冲洗水和初期雨水通过 收集并排入市政污水管网;其他区域不含有毒有害物质,其地面雨水利用自然直接排入海中。
本工程的污水主要是码头地面冲洗和初期雨水,地面冲洗的污水量为16m³/d,初期雨水量为35m³/d,考虑到二种污水不同时发生,本工程污水处理量取35m³/d,经收集后排入市政污水管网。
五、消防工程
码头消防供水管网与生活供水管网共用一套管网系统,干管管径为DN150,消防管网沿码头后侧布置,并与生活给水管网系统形成环状布置。消防管网上布置室外消火栓和分段控制阀门,室外消火栓间距不超过 120米,分段控制阀门控制的消火栓数量不超过5个。室外埋地管材选用钢丝网骨架塑料复合管,电熔连接。
本工程主要货物为水产品,火灾危险性为丙类,码头为本工程最不利的消防对象,消防用水量为15L/S,火灾延续时间为 2h,一次火灾最大用水量为 108m³。
1.3 设计水平年
设计水平年是指水土保持措施实施完毕并发挥效益的时间,取完工后的当年或后一年。本项目为新建建设类项目,计划于2023年10 月开工,预计2025年10月完工,因此本方案的设计水平年定为项目完工的后一年,即 2026 年。
1.4 水土流失防治的执行标准
根据水利部办公厅《关于印发〈全国水土保持规划国家级水土流失重点预防 区和重点治理去复核划分成果〉的通知》(办水保[2013]188号),本项目位于 海南省琼海市潭门镇,项目区属于海南省水土流失重点预防区(SY1-北部海头至博鳌沿海水土流失重点预防区)。
根据《海南省人民政府办公厅关于海南省水土保持规划(2016-2030年)的复函》(琼府办函[2017]375号)中的海南省水土流失重点防治区划分方案,本项目位于海南省琼海市潭门镇,项目区属于海南省水土流失重点预防区(SY1-北部海头至博鳌沿海水土流失重点预防区)。根据《生产建设项目水土流失防治 标准》(GB/T50434-2018)的规定:本项目水土流失防治标准执行等级为南方红
壤区一级标准。
一、防治目标影响因素
本项目水土流失防治标准应执行建设类项目南方红壤区一级标准。根据降雨量、土壤侵蚀强度、地理位置对水土流失防治标准进行修正。项目区水土流失强 度以轻度为主,故土壤流失控制比调整为1.0;据现场资料,咨询建设单位并结 合现场踏勘可知,本项目场地主要为草地、园地和水域及水利设施用地,项目区 地处潭门镇排港村北侧岸线及出海口,土壤类型沙化严重,项目区内表土资源匮 乏,无表土可剥。本项目不设表土保护率。根据方案规划设计,项目建设区不存 在具备绿化条件的区域。根据《生产建设项目水土流失防治标准》(GB/T50434-2018):“对林草植被有限制的项目,林草覆盖率可按相关规定适当调整”。由于主体未设计工程绿地率,本项目不设置林草覆盖率。
根据相关规定及设计文件,修正后6项防治目标为:水土流失治理度目标值 为98%,土壤流失控制比为1.0,渣土防护率目标值为97%,林草植被恢复率目标值为98%。
表 1-5 防治目标指标计算表
2 、项目区水土流失强度以轻度为主,故土壤流失控制比调整为 1.0;
3 、据现场资料,咨询建设单位并结合现场踏勘可知,本项目场地主要为草地、园地和水域及水利设施用地,项目区地处潭门镇排港村北侧岸线及出海口,土壤类型沙化严重,项目区内表土资源匮乏,无表土可剥。本项目不设表土保护率。
4 、根据方案规划设计,项目建设区不存在具备绿化条件的区域。由于主体未设计工程绿地率,本项目不设置林草覆盖率。
1.5 施工组织
工程建设由琼海市农业农村局负责管理。建设单位选择专业施工队伍,严格控制工程质量和进度。施工时由建设单位具体委托施工单位进行施工。
一、施工条件
施工交通运输: 本项目位于琼海市潭门镇排港村北侧岸线及出海口。琼海市 潭门中心渔港位于海南岛的东部海岸,陆路距离琼海市区23公里,东北距清澜37公里,南距博鳌港8公里。水路距离海口港113海里,至清澜渔港27海里,至新村港85海里,交通便利。
本项目对外交通较方便,可利用现有道路可以直达项目区,能够满足施工需求。
主要材料供应:本项目施工期间所需要的钢筋、水泥、混凝土、砖块、砂石等材料可直接到潭门镇购买,能够满足本项目的施工需要。
施工供电、通讯:本项目场区有输电线路经过,接电方便,电力能满足建设需要。项目所在地有主要的通讯电缆经过,接线方便。中国联通、移动通讯信号 已经全面覆盖本区域, 视讯网络等通讯业务都已经全面开通, 为项目建立与外界物流、商流、信息流提供了良好的基础。
二、施工工艺和方法
本工程主要的施工顺序如下:
桩基码头:施工准备-水域疏浚-钢平台搭设、混凝土构件预制-沉桩-现浇横 梁、纵梁-现浇面层-辅助设施安装-验收防波堤改造: 施工准备-抛填堤心石-护底 开挖-抛填护底块石-抛填垫层块石-抛填护面块石-现浇混凝土挡浪墙-现浇堤顶混凝土-验收。
(1)、水域疏浚
码头区水域疏浚以粉砂为主,防波堤水域疏浚以中砂为主,拟采用4方抓斗挖泥船进行疏浚施工,开挖料外抛。施工单位可根据现场实际情况调配采用其他机械,如绞吸船、耙吸船,挖机船配泥驳运输等。疏浚区域将通过GPS定位系统及自动测深装置进行开挖尺寸控制,并使其达到设计要求。
(2)、码头施工
码头施工内容主要包括钢平台搭设、灌注桩施工、现浇上部结构、附属设施安装等。
a.灌注桩施工
灌注桩采用搭设水上施工平台方法施工, 成孔选用冲击钻机。灌注桩施工流程如下:


